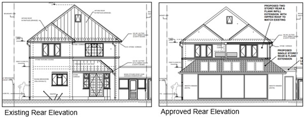
2 Stonehill, East Sheen, Richmond
Following previous refused applications, Cameron Jones Planning were able to provide advice that led to the approval of a part first and part ground floor rear extension at this property adjacent to the Sheen Lane East Sheen Conservation Area.

London Borough of Richmond upon Thames – application reference PA25/3246
