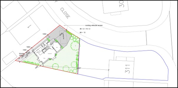
311 Malden Road, New Malden
Planning permission gained for the erection of a new detached dwelling with associated, hard and soft landscaping, parking and boundary fencing on garden land of an existing two storey semi.

Royal Borough of Kingston upon Thames – application reference 25/01513/FUL
